大阪 堺市のリフォームのことなら稲商へ

大阪府・堺市の新築住宅・中古住宅&リフォームのことなら、リノヴェックへ

不動産仲介とリフォームのワンストップサービスをご提供します

大阪 堺市の中古住宅のことならリノヴェックへ

HOME 会社概要 無料見積り ご相談・お問合せ
HOME > 物件一覧 > 上野芝町7丁 新築戸建

Search堺市西区 新築一戸建て 詳細

新築一戸建て上野芝町7丁 新築戸建物件番号:1320188

◆新築!マリンホーム施工◆ゆとりのある4LDKの住まい◆駐車スペース2台あり◆幹太くん標準設置

【現地外観写真】◆新築!マリンホーム施工◆ゆとりのある4LDKの住まい◆駐車スペース2台あり◆幹太くん標準設置◆たっぷりの陽光と心地よい風が舞い込む住まいです

物件詳細

新築一戸建て 上野芝町7丁 新築戸建物件番号:1320188
所在地 階/階建
最寄駅/徒歩(分)
堺市西区上野芝町7丁 2階建
JR阪和線 上野芝駅 / 徒歩12分
価格4,580万円
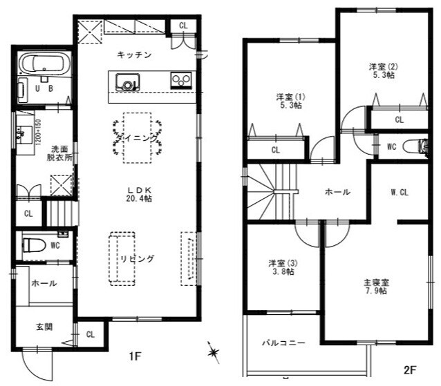
間取り4LDK 
建物構造木造 2階建築年月2025年12月
建物面積100.61m2建築確認番号第BVJ-EKB24-10-0580号
現況未完成引渡し相談
駐車場空有(無料)取引態様仲介
土地面積108.74m2地目宅地
地勢平坦都市計画市街化区域
用途地域第二種中高層住居専用地域建ぺい率60%
容積率200%土地権利所有権
国土法届出不要
接道状況一方 ( 南 6m 公道 )
設備 / 備考 IH/W.INクローゼット/バルコニー/温水洗浄便座/カウンターキッチン/食器洗い乾燥機/クローゼット/シューズボックス/オートバス

物件周辺環境

◇上野芝小学校 … 800m
◇津久野中学校 … 1,100m
◇コンビニ … 600m
◇スーパー … 900m
◇公園 … 580m